|
美标截止阀主要有API和ASME规范,ASTM,ASTM是资料规范,不是阀门自身的规范;按美国规范设计,制作,出产、检测的截止阀叫做美标截止阀。
|
名称 |
美标截止阀 |
|
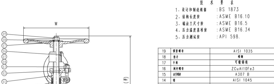
设计标准 |
BS1873 JIS B2071-2081 |
|
结构长度 |
ANSI B16.10,JISB2002 |
|
配管法兰 |
ANSI B16.5、JIS B2212-2214 |
|
对焊端尺寸 |
ANSI B16.25 |
|
检验与试验 |
API598、JIS B2003 |
|
传动方式 |
手动、电动、伞齿轮动 |
美标进口截止阀结构:



美标截止阀结构特色
1、启闭无磨擦。这一功效完全办理了传统[wiki]阀门[/wiki]因密封面之间互相磨擦而影响密封的题目。
2、上装式构造。对装在管道上的阀门可直接在线搜检与维修,能有用削减装配泊车,低落本钱。
3、单阀座计划。消除了阀门中腔介质因非常升压而影响利用宁静的题目。
4、低扭矩计划。特别结构设计的阀杆,只需配一个小手把阀门就能轻松启闭。
5、楔形密封构造。阀门是靠阀杆供给的机器力,将球楔压到阀座上而密封,使阀门的密封性不受管线压差变革的影响,在种种工况下密封机能都有靠得住包管。
6、密封面的自洁净构造。当球体倾离阀座时,管线中的固体沿球体密封面成360°平均经由过程,不但消弭了高速固体对阀座局部的冲洗,也冲走了密封面上的堆积物,到达自洁净的目标。
此类阀门安置在管道上要程度
美标截止阀在管路中首要用来做堵截、分派和扭转介质的活动偏向。美标截止阀是近年来被遍及采纳的一种新型阀门,它拥有如下长处:
1.固体阻力小,其阻力系数与同长度的管段相称。
2.布局简略、体积小、重量轻。
3.慎密靠得住,现在闸阀的密封面质料普遍利用塑料、密封性好,在真空体系中也已普遍利用。
4.操纵利便,开闭敏捷,从全开到全关只要扭转90°,便于远距离的节制。
5.维修轻易,闸阀布局简朴,密封圈一样平常都是举动的,拆卸替换都比力轻易。
6.在全开或全闭时,球体和阀座的密封面与介质断绝,介质经由过程时,不会引起阀门密封面的腐蚀。
7.适用范围广,通径从小到几毫米,大到几米,从高真空至高压力均可运用,球扭转90度时,在进、出口处应全数出现球面,从而截断流动。
美标截止阀注意事项:
美标截止阀按其通道位置可分为直通式,三通式和直角式。后两种闸阀用于分派介质与转变介质的流向。三片式球阀安置与维护应留意下列事变:
1.要留有阀柄扭转的位置。
2.不克不及用作撙节。
3带传动机构的球阀应挺立安置。
美标截止阀,美标闸阀的事情道理是靠旋转阀恋来使阀门流通或闭塞。闸阀开关轻巧,体积小,可以做成很大口径,密封靠得住,构造简略,维修利便,密封面与球面常在闭合状况,不易被介质冲蚀,在各行业获得遍及的运用。
美标截止阀是一种对照新型的闸阀种别,它有着自身布局所独占的一些优越性,如开关无磨擦,密封不易磨损,启闭力矩小。如许可减小所配执行器的规格。配以多反转展转电动执行机构,可实现对介质的调治和精密切断。遍及实用于[wiki]煤油[/wiki]、[wiki]化工[/wiki]、都会给排水等请求严厉堵截的工况。
进口美标截止阀尺寸:
|
DN |
|
|
|
10K |
|
|
|
|
|
|
毫米 |
in |
升 |
D |
D1 |
D2 |
b |
n-ø/d |
H |
Do |
|
50 |
2 |
203 |
155 |
120 |
100 |
16 |
4-ø19 |
360 |
200 |
|
65 |
21/2 |
216 |
175 |
140 |
120 |
18 |
4-ø19 |
380 |
200 |
|
80 |
3 |
241 |
185 |
150 |
130 |
18 |
8-ø19 |
415 |
250 |
|
100 |
4 |
292 |
210 |
175 |
155 |
18 |
8-ø19 |
465 |
250 |
|
125 |
5 |
356 |
250 |
210 |
185 |
20 |
8-ø23 |
515 |
300 |
|
150 |
6 |
406 |
280 |
240 |
215 |
22 |
8-ø23 |
545 |
350 |
|
200 |
8 |
495 |
330 |
290 |
265 |
22 |
12-ø23 |
675 |
450 |
|
|
|
|
20K |
|
|
|
|
|
|
50 |
2 |
267 |
155 |
120 |
100 |
18 |
8-ø19 |
420 |
200 |
|
65 |
21/2 |
292 |
175 |
140 |
120 |
20 |
8-ø19 |
465 |
250 |
|
80 |
3 |
318 |
200 |
160 |
135 |
22 |
8-ø23 |
490 |
300 |
|
100 |
4 |
356 |
225 |
185 |
160 |
24 |
8-ø23 |
590 |
350 |
|
125 |
5 |
400 |
270 |
225 |
195 |
26 |
8-ø25 |
690 |
400 |
|
150 |
6 |
444 |
305 |
260 |
230 |
28 |
12-ø25 |
760 |
450 |
|
200 |
8 |
559 |
350 |
305 |
275 |
30 |
12-ø25 |
1070 |
450 |
美标截止阀工作原理: A、开 启 历 程
1、在封闭位置,阀体受阀杆的[wiki]机器[/wiki]施压作用,紧压在阀座上。
2、当逆时针迁移转变手轮时,阀杆则反向活动,其底部角形平面使球体脱开阀座。
3、阀杆继承提拔,并与阀杆螺旋槽内的导销相互作用,使球体入手下手无磨擦地扭转。
4、直至到全开位置,阀杆晋升到极限位置,球体扭转到全开位置。
B、封闭历程
1、封闭时,顺时针扭转手轮,阀杆起头降低并使球体脱离阀座入手下手扭转。
2、继承扭转手轮,阀杆受到嵌于其上螺旋槽内的导销的感化,使阀杆和闸板同时扭转90°。
3、将近封闭时闸体已在与阀座无打仗的环境下扭转了90°。
4、手轮动弹的末了几圈,阀杆底部的角形平面机器地楔向克制球体,使其精密地压在阀座上,到达彻底密封。
以上内容由彪维公司(www.bilvie.com)编写,转载请注明文章出处。 |